Registered NDIS, TAC and WorkSafe provider

Mulgrave – 3 Bedroom HPS Home

Mulgrave

Details and Features

This exceptional, modern High Physical Support home is thoughtfully designed with comfort, safety and independence in mind. Built to High Physical Support SDA standards, the home incorporates enhanced accessibility features, safety considerations and quality supports creating a supportive and welcoming environment where residents can feel truly at home.

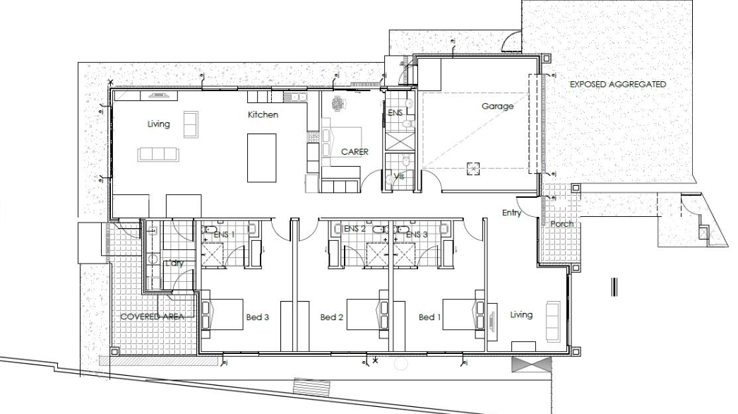
Designed for three participants, the home offers spacious and functional living areas that balance privacy with shared community living. Each space is carefully planned to provide comfort and independence, while encouraging a welcoming and supportive household environment.

Enjoy comfortable living with modern features, including contemporary finishes and well-designed shared spaces. The expansive open-plan living, dining and kitchen area creates a layout where residents can relax, socialise and feel at home.

Conveniently located close to essential services and local amenities, this home provides easy access to supports, healthcare shopping and transport, creating a practical and connected living environment.


Location Information

  • 3 km to Monash Medical Centre
  • 4 km to Waverly Gardens Shopping centre
  • 4 km to Glen Waverly Train Station
  • 8 km to Dandenong Hospital

Property Features

Spacious bedrooms with build-in wardrobes & private ensuites
Modern features
Fully-furnished
Wide doorways
Rumpus room
Heating / cooling systems
Enhanced accessibility and safety features


Floor Plan

Disclaimer: the images shown are representative only, or for illustration purposes only, and may not be an exact representation of the vacancies or location.

Be the first to live in this modern High Physical Support SDA home, designed for three participants, featuring spacious private bedrooms, quality supports and a bright open-plan living area.



Key Features

Number of Bedrooms: 3
Number of Participants: 3
OOA Room: 1
Number of Vacancies: 3
SDA Design Category: High Physical Support
Region: South-East
Available: May 2026


Make an Enquiry