Registered NDIS, TAC and WorkSafe provider

Sunbury – Spacious 3-bedroom High Physical Support Home

Sunbury

Details and Features

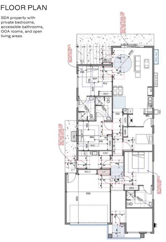
Step into this modern three-bedroom High Physical Support home in Sunbury, thoughtfully designed to provide comfort, accessibility and independence. Fully furnished and built to meet complex support needs, the home features spacious private bedrooms, accessible bathrooms and open-plan living areas that create a warm and functional environment. With an OOA (Onsite Overnight Assistance) room available, participants can enjoy the right balance of independence and support in a safe, welcoming setting.

We understand that moving into a new home can feel overwhelming. That’s why Paramount Homes is here to support you every step of the way with our Residency Care Package, offering flexible property options tailored to your personal needs. Contact Paramount Homes to learn more about available funding options and the support we can provide in helping you find your forever home.


Location Information

  • 160 m to local park
  • 4.8 km to local shops
  • 4.5 km to Sunbury Community hospital
  • 4.9 km to Sunbury Train Station

Property Features

Spacious bedrooms with private ensuites
OOA (On site assistance) room
Flexible property options
1 car space
TV, dishwasher, oven & microwave provided
White goods furnished
Pet friendly 🐾


Floor Plan

Disclaimer: the images shown are representative only, or for illustration purposes only, and may not be an exact representation of the vacancies or location.

Be the first to enjoy a modern High Physical Support home designed to SDA standards, offering private en-suite bedrooms and open-plan accessible living.



Key Features

Number of Bedrooms: 2
Number of Participants: 3
OOA Room: 1
Number of Vacancies:
SDA Provider: Paramount Homes
SDA Design Category: High Physical Support, MTA (Medium Term Accommodation)
Region: West
Available: Available Now


Make an Enquiry