Registered NDIS, TAC and WorkSafe provider

Greenfield Apartments – Fairfield HPS 1 and 2 Bedroom Apartments

Fairfield

Details and Features

This thoughtfully designed property is now available in the vibrant suburb of Fairfield. Fairfield perfectly blends suburban tranquillity with urban convenience, making it an ideal place to call home. Experience the charm of a friendly community, enjoy beautiful parks and take advantage of excellent transport links.

The property features 6 bedrooms, including 2-bedroom apartments designed for participants who require a sleepover (OOA – Onsite Overnight Assistance) due to complex needs. The other bedrooms are suitable for those seeking independent living. Each space provides ample room for comfort and relaxation, with an ongoing lease available for you to live independently.

CareChoice will be providing supports for these homes and are experts in complex care with over 18 years’ experience providing person-centred active support.

 


Location Information

  • 850 m to local park
  • 800 m to local coffee shop
  • 150 m to the nearest train station
  • 5 km to Austin Hospital

Property Features

Ensuite & Built-in wardrobes

Ceiling Hoist

Automated doors

Lift access

Pets allowed

Outdoor area

Furnished


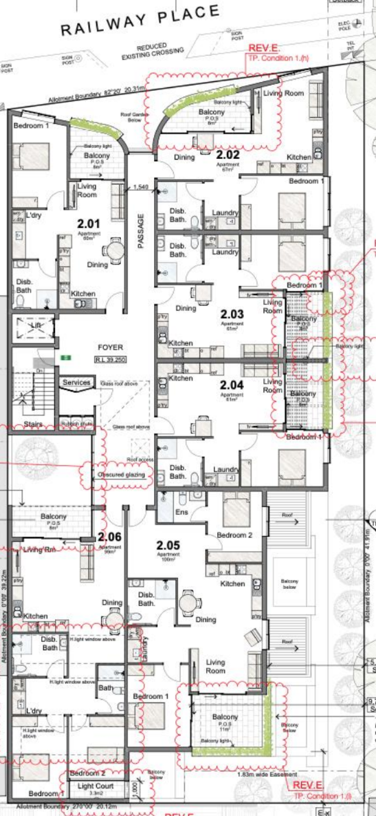
Floor Plan

Disclaimer: the images shown are representative only, or for illustration purposes only, and may not be an exact representation of the vacancies or location.

Be the first to live in this brand-new apartment in Fairfield, featuring 6 bedrooms and OOA support for those with complex needs.



Key Features

Number of Bedrooms: 6
Number of Participants: 6
OOA Room: 1
Number of Vacancies: 6
SDA Design Category: High Physical Support
Region: North
Available: Available Now


Make an Enquiry